Crikvenica- građevinsko zemljište 400m do mora sa idejnim projektom

Cijena:
220.000 €
190.000 €
Površina:
498 m2
ID Kod:
300561022-132

Detalji nekretnine

Lokacija:
Crikvenica
Transakcija:
Za prodaju
Vrsta nekretnine:
Građevinsko zemljište
Cijena:
220.000 €
190.000 €
Površina:
498 m2

Opis nekretnine

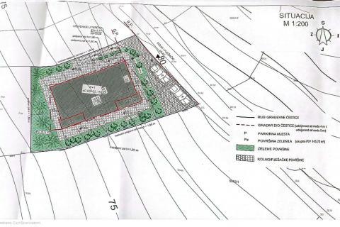
Prodaje se zemljište veličine 498 m² s projektom za obiteljsku kuću koja sadrži dvije stambene jedinice. Smješteno na atraktivnoj lokaciji, samo 400 metara od mora, s prekrasnim pogledom na more. Idealno za gradnju obiteljske kuće ili kao investicija za turističke namjene.

Blizina svih potrebnih sadržaja: trgovine, restorani, plaže, škole, te brzi pristup gradskim uslugama.

Karakteristike

Karakteristike
  • Namjena terena: Stambena
Infrastruktura
  • bez infrastrukture
Infrastruktura do terena
  • Voda
  • Struja
Pogled
  • otvoren pogled
  • Pogled na more: da
Orijentacija
  • Jug
  • Udaljenost od mora: 300-500m
Opis okruženja
  • U blizini glavne ceste / autoputa
  • U mirnoj ulici
  • U blizini trgovine
  • U blizini mora/plaže
  • U blizini parka/šume
 

Pošalji upit

Recite našem agentu što tražite

m2
m2