- Lokacija:
- Kraljevica
- Transakcija:
- Za prodaju
- Vrsta nekretnine:
- Kuća
- Ukupan broj soba:
- 13
- Spavaće sobe:
- 7
- Kupaonica:
- 6
- WC:
- 1
- Ukupno katova:
- 3
- Cijena:
- 1.200.000 €
- Površina:
- 400 m2
- Površina okućnice:
- 673 m2
Prodajemo prostranu samostojeću kuću s bazenom u slikovitoj Kraljevici, udaljenu svega 500 metara od obale i plaže.
Kuća se sastoji od prizemlja, dva kata i potkrovlja, te nudi obilje prostora za udoban život ili turistički najam.
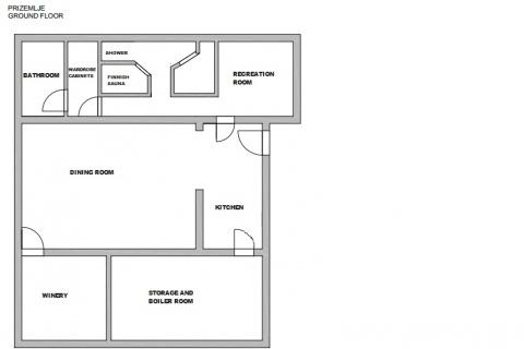
U prizemlju se nalazi velika konoba idealna za obiteljska okupljanja, opremljena kuhinja, soba za rekreaciju, finska sauna, kupaonica, spremište i vinski podrum.
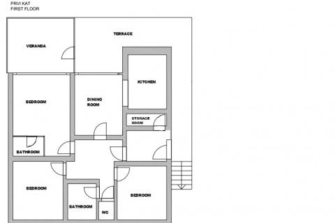
Na prvom katu se nalazi prvi stan koji uključuje tri spavaće sobe, od kojih je jedna master spavaća soba s vlastitom kupaonicom, dvije dodatne spavaće sobe,
još jedna kupaonica, toalet, kuhinja, spremište i prostrani dnevni boravak.
Odatle se pruža izlaz na veliku terasu s prekrasnim pogledom na more.
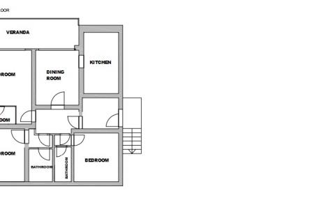
Na drugom katu se nalazi drugi stan s tri spavaće sobe, od kojih je jedna master spavaća soba s vlastitom kupaonicom, dvije dodatne spavaće sobe, dvije kupaonice, kuhinja, blagovaonica i terasa s panoramskim pogledom na more i planinu Učku.
Visoko potkrovlje, koje trenutno služi kao spremište, pruža mogućnost izgradnje još jednog stana. U lijepo uređenoj okućnici nalazi se prostor s roštiljem za ljetna druženja, natkriveni bazen s opcijom grijanja, te dodatna prostorija za druženje koja se može koristiti kao spavaća soba. Kuća također ima dva natkrivena parkirna mjesta.
Ova nekretnina idealna je za turizam i investiciju, s obzirom na svoju blizinu obali i zračnoj luci Rijeka, udaljenoj samo 8 kilometara.
Spremna je za novog vlasnika ili za bavljenje turizmom te pruža obilje prostora i mogućnosti za udoban i ugodan boravak.
Kuća se sastoji od prizemlja, dva kata i potkrovlja, te nudi obilje prostora za udoban život ili turistički najam.
U prizemlju se nalazi velika konoba idealna za obiteljska okupljanja, opremljena kuhinja, soba za rekreaciju, finska sauna, kupaonica, spremište i vinski podrum.
Na prvom katu se nalazi prvi stan koji uključuje tri spavaće sobe, od kojih je jedna master spavaća soba s vlastitom kupaonicom, dvije dodatne spavaće sobe,
još jedna kupaonica, toalet, kuhinja, spremište i prostrani dnevni boravak.
Odatle se pruža izlaz na veliku terasu s prekrasnim pogledom na more.
Na drugom katu se nalazi drugi stan s tri spavaće sobe, od kojih je jedna master spavaća soba s vlastitom kupaonicom, dvije dodatne spavaće sobe, dvije kupaonice, kuhinja, blagovaonica i terasa s panoramskim pogledom na more i planinu Učku.
Visoko potkrovlje, koje trenutno služi kao spremište, pruža mogućnost izgradnje još jednog stana. U lijepo uređenoj okućnici nalazi se prostor s roštiljem za ljetna druženja, natkriveni bazen s opcijom grijanja, te dodatna prostorija za druženje koja se može koristiti kao spavaća soba. Kuća također ima dva natkrivena parkirna mjesta.
Ova nekretnina idealna je za turizam i investiciju, s obzirom na svoju blizinu obali i zračnoj luci Rijeka, udaljenoj samo 8 kilometara.
Spremna je za novog vlasnika ili za bavljenje turizmom te pruža obilje prostora i mogućnosti za udoban i ugodan boravak.
Ostale prostorije
- Kupaonica sa prozorom
- Kuhinja
- Kuhinja sa prozorom
- Spremište
- Hodnik
- Balkon/lođa/terasa
- Vrsta kuće/vikendice: samostojeća
- Godina izgradnje: 1975 god.
- Nekretnina (stanje): dovršena
- Stil gradnje: klasičan
- Razred energetske učinkovitosti: U izradi
- Lift: ne
- Pristup invalidima: ne
- Dimnjak: ima
- Nekretnina se prodaje/iznajmljuje: namještena
- Tlocrtna površina nekretnine: 133 m2
- Parking: da
- Parking (broj): 2
- Natkriveni parking: da
- Povlašteni parking: ne
- Garaža: ne
- Instalacije struje: 2020 god.
- Instalacije vode: 2020 god.
- Kupaonica/ kuhinja: 2020 god.
- Pod: parket/laminat/pločice: 2020 god.
- Struja
- Voda
- Grijanje
- Klasično
- Etažno centralno
- Klima uređaj
- Struja
- Lož ulje
- Voda
- Struja
- Kanalizacija
- otvoren pogled
- Pogled na more: da
- Jug
- Udaljenost od mora: 300-500m
- U mirnoj ulici
- Mogućnost zamjene: ne
