- Lokacija:
- Poreč okolica, Poreč
- Transakcija:
- Za prodaju
- Vrsta nekretnine:
- Kuća
- Ukupan broj soba:
- 5
- Spavaće sobe:
- 4
- Kupaonica:
- 4
- WC:
- 1
- Ukupno katova:
- 2
- Cijena:
- 350.000 €
- Površina:
- 215 m2
- Površina okućnice:
- 540 m2
Prodaje se kuća smještena u malom mjestu na udaljenosti od 5 km do turističkog grada Poreča i mora.
Ukupne je površine 215 m2 na parceli od 540 m2. Trenutno je u roh-bau fazi te se kao takva i prodaje.
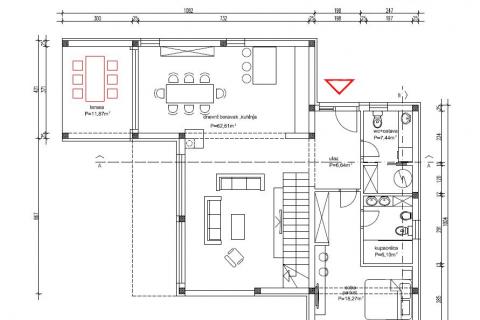
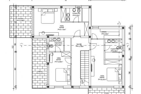
U prizemlju površine 113 m2 smješten je ulazni hodnik, dnevni boravak s kaminom, open space blagovaona s kuhinjom, toalet sa spremištem te jedna spavaća soba sa vlastitom kupaonicom. Dnevni dio ima velike staklene stijene koje pružaju puno svjetlosti kao i pogled na bazen smješten u dvorištu te okolno zelenilo. Na gornjem katu se nalaze još tri spavaće sobe, svaka sa svojom kupaonom i terasom.
Lijepa lokacija i mogućnost dovršetka kuće po željama budućeg vlasnika čine ovu nekretninu zanimljivom investicijom.
Ukupne je površine 215 m2 na parceli od 540 m2. Trenutno je u roh-bau fazi te se kao takva i prodaje.
U prizemlju površine 113 m2 smješten je ulazni hodnik, dnevni boravak s kaminom, open space blagovaona s kuhinjom, toalet sa spremištem te jedna spavaća soba sa vlastitom kupaonicom. Dnevni dio ima velike staklene stijene koje pružaju puno svjetlosti kao i pogled na bazen smješten u dvorištu te okolno zelenilo. Na gornjem katu se nalaze još tri spavaće sobe, svaka sa svojom kupaonom i terasom.
Lijepa lokacija i mogućnost dovršetka kuće po željama budućeg vlasnika čine ovu nekretninu zanimljivom investicijom.
Ostale prostorije
- Površina balkona/lođe/terase: 12+12+9 m2
- Vrsta kuće/vikendice: samostojeća
- Godina izgradnje: 2024 god.
- Novogradnja
- Nekretnina (stanje): nedovršena
- Stil gradnje: moderan
- Razred energetske učinkovitosti: U izradi
- Lift: ne
- Pristup invalidima: uz manju adaptaciju
- Dimnjak: ima
- Nekretnina se prodaje/iznajmljuje: nenamještena
- Tlocrtna površina nekretnine: 113 m2
- Parking: da
- Parking (broj): 2+
- Natkriveni parking: ne
- Povlašteni parking: ne
- Garaža: ne
- nema
- nema
- Voda
- Struja
- Kanalizacija
- otvoren pogled
- Pogled na more: ne
- Jug
- Zapad
- Udaljenost od mora: više od 1km
- Predgrađe
- U mirnoj ulici
- U blizini trgovine
- U blizini parka/šume
